- Fragen der Bürgerschaft
Ein Anwohner-Ehepaar vom Neubaugebiet Vorderer Blösenberg wollte Auskünfte über verschiedene Vorgänge im Zusammenhang mit der Baustelle. Bürgermeister Brandt verwies auf die persönlichen und privatrechtlichen Gründe, die ihn hinderten in öffentlicher Sitzung Stellung zu nehmen. - Bekanntgabe der Beschlüsse aus der nichtöffentlichen Sitzung am 17.09.2025
Bürgermeister Brandt teilte mit, dass der Gemeinderat einem privaten Grundstücksgeschäft in der Mühlstraße, Mönchzell zugestimmt hat. - Feststellung des Protokolls aus der Gemeinderatssitzung am 17.09.2025
Das Protokoll kann im https://ratsinformationsdienst.meckesheim.de/ eingesehen werden. - Wasserversorgung – Jahresbericht 2024
Herr Hirn von den Stadtwerken Walldorf, mit denen die Gemeinde seit 2023 erfolgreich zusammenarbeitet, informierte über den aktuellen Sachstand zur Infrastruktur und zu einigen interessanten Zahlen. Es wurde deutlich, dass diese Kooperation sehr gut funktioniert. Das lebenswichtige Gut Trinkwasser ist bei den beteiligten in guten Händen. Wir bedankten uns für die reibungslose Zusammenarbeit bei Herrn Hirn, aber auch bei unserem Bauhofteam. - Aufstellungsbeschluss „Oberbrühl IV“
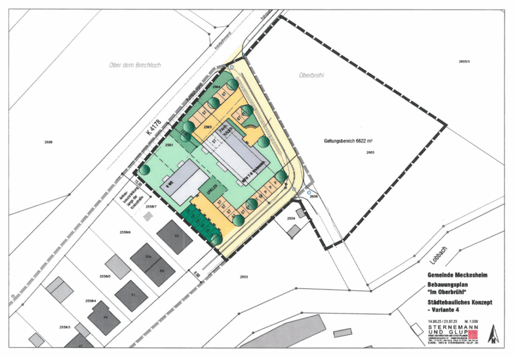
Was der Ortschaftsrat bereits behandelt und gutgeheißen hat, wurde nun im Gemeinderat vorgestellt und ebenfalls positiv aufgenommen. Herr Glup vom Ing.Büro Sternemann und Glup stellte die Erweiterung vor. Es könnten dort zwei Mehrfamilienhäuser entstehen und in Richtung Lobbach ein Mischgebiet für gewerbetreibende Interessenten entstehen. Der Bedarf ist vorhanden, Nachfragen gingen bei der Gemeinde schon ein.
Ein weitergehender Vorschlag der SPD-Fraktion fand keine Zustimmung.
Nun wird das weitere Verfahren in Gang gesetzt.

- Aubrücke – Vergabe Abbrucharbeiten
Die sogenannte Aubrücke über die Elsenz bei der allahopp!-Anlage muss weichen. Der bauliche Zustand wurde beanstandet. Der Abbruch wurde durch den Gemeinderat einstimmig an die Fa. Erdbau Kuhn, Kirchardt zum Angebotspreis von 30.813 € vergeben.
Ausführung der Arbeiten im November 2025. - Aubrücke – Vergabe Stahlbauarbeiten
Nach dem Abbruch soll direkt im Anschluss der Ersatzneubau erfolgen. Der Gemeinderat hat sich in einer der vergangenen Sitzungen für eine Stahlkonstruktion ausgesprochen. Die neue Brücke mit einer Länge von 24,00 m und einer lichten Breite von 2,50 m erhält als Belag GFK-Planken aus Polyesterharz. Die Arbeiten wurden einstimmig an den günstigsten Bieter, die Fa. Metallbau B. Münch aus Limbach vergeben. Der Preis hierfür: 113.800 €

- Windpark Langenzell – Festlegung von Standorten zur Landschaftsbildvisualisierung
Im Wiesenbacher Ortsteil Langenzell soll ein Windpark entstehen, auf dem zukünftig fünf Windkraftanlagen aufgestellt werden sollen. Von der Genehmigungsbehörde wurde unsere Gemeinde aufgefordert, Standorte festzulegen, von denen man aus verschiedenen Blickrichtungen die vorgesehenen Windräder sichtbar machen kann. Der Gemeinderat einigte sich auf fünf Punkte. In Mönchzell sind dies die vom Ortschaftsrat gewählten Standorte Hummelberg, Ortsmitte und Reichelsberg. In Meckesheim wurde vorgeschlagen: Friedhof und Kurpalzstraße. - Mitgliedschaft Sinsheimer Erlebnisregion
Der Gemeinderat hat mehrheitlich den Ausstieg aus dem Verbund beschlossen. Die Gemeinde spart dadurch knapp 5.000 € jährlich ein. Der Mehrwert durch die Mitgliedschaft wurde stark angezweifelt. Der Fokus dieses Verbundes liegt sehr auf der Stadt Sinsheim mit ihren Stadtteilen, was auch schon der Name ausdrückt. Zukünftig beteiligen wir uns an einer ähnlichen Struktur, die vom Rhein-Neckar-Kreis aufgelegt wird. Diese ist für uns kostenfrei. - Erste Änderung des Hebesatzes für Grundsteuer B aufgrund der Grundsteuerreform
Das Land Baden-Württemberg hat im Jahr 2020 das neue Landesgrundsteuergesetz beschlossen. In der Folge hat die Gemeine Meckesheim sich daran orientiert und einen neuen Hebesatz festgelegt, der aufkommensneutral sein sollte. Gleichzeitig wurde beschlossen den Hebesatz anzupassen, falls sich nach Vorliegen der Messbescheide durch das Finanzamt Abweichungen zum bisherigen Aufkommen ergeben. Dies nun der Fall, deshalb wurde der Hebesatz Grundsteuer B von 222% auf 230% festgesetzt. - Feststellung der Jahresabschlüsse für 2024 im Kernhaushalt und in den Eigenbetrieben „Energie- und Wasserversorgung“ und „Abwasserbeseitigung“
Das Haushaltsjahr 2024 war ein außergewöhnlich erfolgreiches Jahr. Aufgrund einer großen Gewerbesteuereinnahme hat sich der Haushalt 2024 um einiges positiver entwickelt als geplant. Der Kämmerer Martin Stricker trug den detaillierten Bericht vor und beantwortete einige Fragen. Die Fraktionen gaben ihre Stellungnahmen ab. Für unsere Fraktion sprach Marcel Gengenbacher GR 102225 Ö_11. - Beteiligungsbericht 2024
Der Gemeinderat wurde über die diversen Beteiligungen informiert.




